OBRAS REALIZADAS
C/CAMPOAMOR, Oviedo Casas Con Gusto
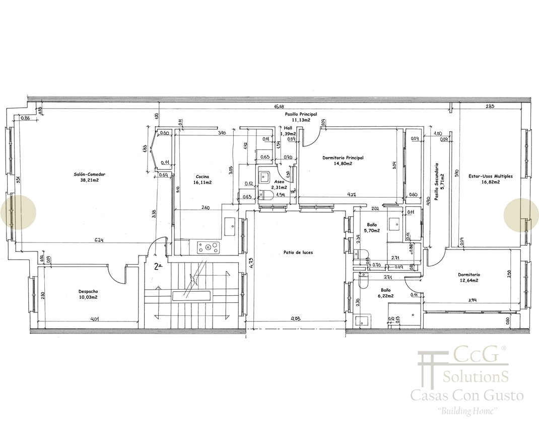
Vivienda de tendencia e inspiración colonial, con interposición de líneas vanguardistas. Consta de hall-salón-comedor, despacho, sala polivalente, cocina, dos dormitorios con baño y aseo. S.util.- 141,04.-m2. Obras ejecutadas y acabados: Demolición total de la vivienda, incluidos enfoscados de medianeras y fachadas por el interior, falsos techos y solados. Altura interior S/T 2,80mts. Tabiquería de ladrillo con guarnecido y enlucido de yeso. Aprovechamiento de zócalo de mampostería de piedra natural y ladrillo tipo “escafilado” en pasillo. Aplacados y solados porcelánicos en locales húmedos. Solado de piedra natural en hall. En el resto de la vivienda pavimento de tarima de madera maciza de castaño de 120x22mm de espesor, colocada sobre rastrel y con aislamiento acústico. Rodapiés lacados de 15cm de altura. Falso techo de pladur con aislamiento acústico en toda la vivienda. Cornisas y molduras de gran desarrollo. Carpintería de ventanas en aluminio de 72mm de sección con rotura de puente térmico (las orientadas a fachada están motorizadas). Acristalamiento Climalit con vidrio acústico y barrotillo interior. Persianas de aluminio inyectado con poliuretano. Carpintería interior de madera lacada hojas de 210cm de altura y 40mm de espesor. Guarniciones rectas con plintos en su parte inferior. Herrajes de acero inox mate. Frentes de armarios y distribución interior con cajoneras, baldas y barra de cuelgue, con acabado interior de melanina entelada. Reproducción de puerta entrada. En los cambios de pavimento se han interpuesto bandas de silestone y acero en el paso a cocina. Las instalaciones se han renovado en su totalidad e incluyen cableado y toma de datos en todas las estancias a excepción de baños. La distribución y diseño de la cocina incluye el amueblamiento y todos los electrodomésticos. El diseño personalizado de la reja de separación de cocina-salón, en combinación con las del armario ropero de hall, y la mesa auxiliar de cocina, dotan a la vivienda de elementos únicos en el mercado, exclusivos de la firma CCG SolutionS - Casas Con Gusto ®. Con tratamiento especial de oxidación y barnizado manuales, devuelven al hierro su textura y acabado natural. Las fotografías adjuntas muestran el aspecto de la vivienda en su estado actual, pendiente de completar el amueblamiento por parte de los propietarios con apoyo conceptual de CCG SolutionS - Casas Con Gusto ®.



























