OBRAS REALIZADAS
C/MARQUES DE TEVERGA, Oviedo CCG SolutionS
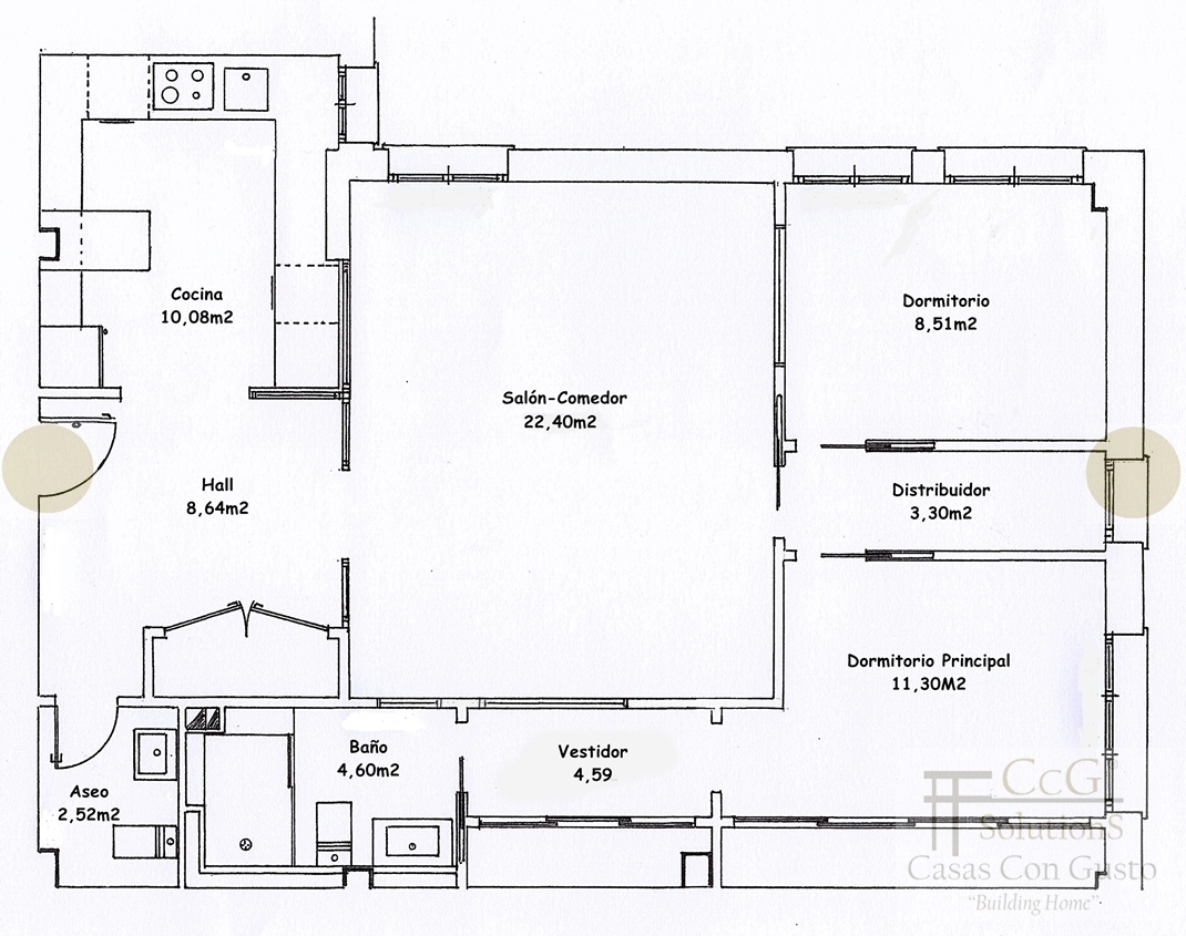
Vivienda de tendencia e inspiración vintage-industrial y modernista. Consta de hall, cocina, salón-comedor, dos dormitorios, vestidor, baño y aseo. S.util.- 75,94.-m2. Obras ejecutadas y acabados: Demolición total de la vivienda, falsos techos y solados. Altura interior S/T 2,50mts. Tabiquería de ladrillo con guarnecido y enlucido de yeso. Aplacados y solados porcelánicos en locales húmedos. Pavimentos porcelánicos en el resto de la vivienda. Rodapiés lacados de 15cm de altura. Falso techo de pladur con aislamiento acústico en baño y aseo. Carpintería de ventanas en PVC de 72mm de sección. Acristalamiento con vidrio Climalit y barrotillo interior. Persianas de aluminio inyectado con poliuretano. Carpintería interior de madera lacada hojas de 203cm de altura y 35mm de espesor. Guarniciones rectas con plintos en su parte inferior. Herrajes de acero inox mate. Frentes de armarios y distribución interior con cajoneras, baldas y barra de cuelgue, con acabado interior de melanina entelada. Puerta de entrada acorazada panelada por el interior. En los cambios de pavimento se han interpuesto bandas de piedra natural abujardada y acero en el paso a cocina. Las instalaciones se han renovado en su totalidad e incluyen cableado y toma de datos en todas las estancias a excepción de baños. La distribución y diseño de la cocina incluye el amueblamiento y todos los electrodomésticos. El diseño personalizado de las rejas de separación de cocina-hall-salón con tratamiento de figuras en “pan de oro”, la mesa de comedor y estantería del salón, dotan a la vivienda de elementos únicos en el mercado, exclusivos de la firma CCG SolutionS - Casas Con Gusto ®. Con tratamiento especial de oxidación y barnizado manuales, devuelven al hierro su textura y acabado natural. Las fotografías adjuntas muestran el aspecto de la vivienda en su estado actual, pendiente de completar el amueblamiento por parte de los propietarios con apoyo conceptual de CCG SolutionS - Casas Con Gusto ®.
























